Projects
Champagne and True Grit
Not Tellin' II Boat Logo
B Smart Client Booklets
B Smart Builders Rebrand
Personal Identity
14th Amendment Poster Campaign
The Magician's Closet Identity
Jamear Restaurant Identity
MacArthur Poster
Intrepid Vines Wine Bottle Design
Williams Sonoma Annual Report
Hestia Harvest Soap Package Design
Contact
Projects
Champagne and True Grit
Not Tellin' II Boat Logo
B Smart Client Booklets
B Smart Builders Rebrand
Personal Identity
14th Amendment Poster Campaign
The Magician's Closet Identity
Jamear Restaurant Identity
MacArthur Poster
Intrepid Vines Wine Bottle Design
Williams Sonoma Annual Report
Hestia Harvest Soap Package Design
Contact
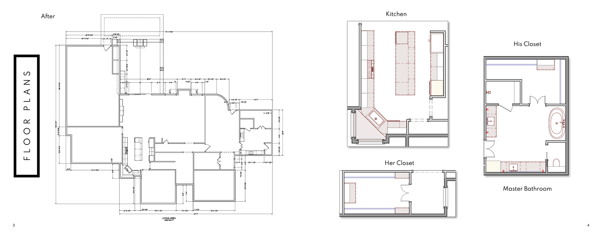
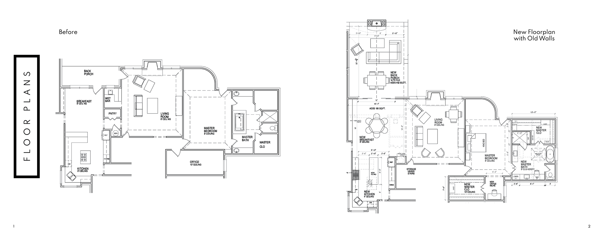
B Smart Client Booklets
At the conclusion of each remodel, clients received a curated booklet documenting the process of their home's transformation complete with before, progress, and after pictures and written details of the finished product.
↑
Back to Top